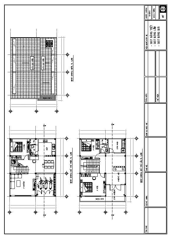
Mẫu nhà 8 x 8 m nhỏ ngọn tiện nghi hiện đại, nhưng giá xây dựng cực dễ chịu, không gian mở ánh sáng và gió rất đảm bảo, gồm 3 phòng ngủ, 1 phòng, gara xe máy, 2 wc. Với một diện tích cũng khá kiêm tốn nhưng kts đã thể bố trí phòng chức năng một cách tối giản và rất hợp lý. Nhìn mặt tiền được thiết kế hiện đại, không gian phòng khách được thiết kế mở rất thoáng mát không bị những bức tường gây khó chịu
